90-Unit Condo EV Charging Case Study

Executive Synopsis

Retrofitting an existing condominium for EV charging is rarely straightforward, especially when original drawings are incomplete and utility capacity is uncertain. This case study documents how a 90-unit Chicago condominium progressed from a single owner’s EV charger request to a fully permitted, make-ready charging infrastructure serving all privately deeded parking spaces in approximately 14 months. The project required new as-built documentation, a stamped electrical load analysis, coordination with installers, engineers, legal counsel, and municipal reviewers, and clear board-level governance. The result is a scalable, equitable EV charging framework funded from reserves and designed to support future owner installations without utility service upgrades or special assessments.


Abstract

This case study is what prompted me to start Ready EV Now.  Through my own journey, I realized that retrofitting an existing condominium building to support EV chargers at all available parking spaces was going to be a complex challenge. Once I dug into it like all of my other construction development projects, the path became clearer.  If I were to do this again, I know where I can trim the timeline down because I’ll already know the right questions to ask and which experts to bring in.

Altogether, the timeline from request to having make-ready infrastructure available took 14 months.  Not bad when starting from zero.  The condo association ended up with new permanent electrical infrastructure, an EV resolution to the by-laws making the new infrastructure accessible to all parking space owners, contracts with EV charging service and installation providers, and process/forms for handling new EV charger requests.

Background

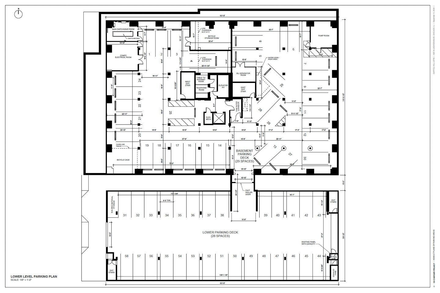
The property, located in the West Loop Gate neighborhood of Chicago, is a 90-unit condominium building with commercial/retail on the first floor.  The parking garage has 92 spaces subdivided into 3 distinct sections: a lower basement heated garage, a lower parking deck, and an upper parking deck.  The building was originally built in 1918 and the adjacent parking deck was built in 2000 when the renovations occurred to convert the building from a heavy timber industrial building to a timber loft condominium building.  A conversion often done in this part of the city.  The main electrical room is at one corner of the basement garage under the building.  All parking spaces are privately deeded.  There is no public, metered, or dedicated EV charging parking spaces at the property.

Figure 1. Subject property.

The Initial Request

Month 0 is when I made my formal request in late 2024 after I decided to purchase an electric vehicle (EV).  Before I made my request I did some online research to find out what was feasible and how to best work with the HOA board to get my request heard.  I found out that there was a new law in Illinois that went into effect in January of that year that legally restricts condo associations from blocking reasonable request for owner to request an EV charger as long as the owner is willing to cover the costs, which I was. So, I at least had some ammo to get my case heard.  I then drafted my letter to the condo association and sent it to the property manager.  In addition to my request letter, I also volunteered to perform a study on the behalf of the association and at my own expense to see if there was an opportunity to develop an infrastructure solution that would cater to all of the parking space owners.  As part of this offer, I requested that the topic be put on the next board meeting’s agenda so I can present my proposal.

The property manager responded and added my topic to the agenda for the next board meeting that was scheduled the following month.  The board only officially meets once a quarter.  At the meeting, I presented my proposal to do an assessment and surprisingly found overwhelming support and interest by all board members.  One of the board members commented they were unaware of the new IL law regarding EV charging, which signaled a change in focus by the board knowing that this topic will not “go away”.

Information Gathering and Assessment

Now that the board endorsed my ability to conduct the assessment, I went to work.  I researched and contacted several EV charging installation companies and service providers.  I brought each company rep on site to review the physical conditions.  Each time, I had to make a request with the property manager to allow the onsite building engineer to let the service provider and me inside the main electrical room.  I took photos of the entire garage and all of the existing electrical components.

When meeting with the various service providers, I realized that the information set I had was incomplete.  We didn’t have good as-built drawings of the parking deck that was later added despite having the as-builts of the basement level garage of the building.  There were no electrical as-builts available.  One of the board members clued me into which local architecture firm made the plans for the building and I reached out to that architecture firm, with no success in finding them.  The project predated the years they keep on file and reported they suffered a flood that destroyed much of their older archives.

Figure 2. Result of LiDAR scan of Electric Room.

So now I had to create as-built drawings to have a better baseline of material.  Fortunately, being trained as an architect, I know how to prepare scaled architectural drawings in CAD.  I then created plans of all the parking areas with the assigned parking number of each space reflected on the plans.

As-built architectural floor plan of garage.

Figure 3. Architectural as-built floor plan of garage.

However, I still don’t have electrical plans.  I first conducted my own physical trace of the electrical infrastructure and developed a one-line drawing as a starting point for discussion with electrical engineers.  I found an electrical engineer on Upwork and hired them ($2,250 at my own expense) to conduct a physical review of the property to create stamped as-built drawings of the existing electrical infrastructure.  I also hired the same firm to conduct a load analysis of the part of the electrical infrastructure we would logically tie into for EV charging within the common garage areas.  This load analysis would determine our excess capacity available that can be allocated to EV charging.  The goal was to not modify our building’s existing electrical service.

Stamped as-built electrical one-line diagram

Figure 4. Electrical engineer’s one line diagram.

I worked with one of the board members to extract the reports we needed from the common meter ComEd (electric utility) account.  We were able to pull out 3-years worth of data, which was helpful, but the electrical engineer wanted to see 5-years worth of data.  The limited data was due, in part, to a change-out of the electric meters to smart meters, in which all meters got re-assigned new numbers and then ComEd made a global change to update the account numbers.  This made all of the data finding very confusing.  Finally, the electrical engineer was able to track down the demand data he needed after much back and forth with us and ComEd reps.

Presentation and Approval

Now with the proposal in hand, I crafted a presentation with all the facts and figures to present to the board.  The topic was back on the agenda 5 months after my first request was made. I made the presentation for purposes of the board understanding the proposal and for answering their questions.  It would take another future board meeting to authorize and approve the proposal.

Figure 5. Intro slide of condo board presentation.

At Month 8, the board approved the make-ready infrastructure project by majority vote. The project was funded entirely from existing garage reserves, avoiding the need for a special assessment. Concurrently, the board approved an EV charging resolution establishing rules, processes, and owner responsibilities. Full integration of the resolution followed final construction approval.

Contractor Hiring and Payment

Now with board approval, it was time to engage the installation contractor.  We worked on the contracts for 1 month to get a signed construction contract in place.  The delay came mostly from the attorney hired by the condo association.  There were several documents to review and a rider need to be constructed to properly protect the association.

The next part was to get the initial payment to the contractor as a deposit to start the work.  This was happening during the time the association was changing to a different property manager, which still had financial accounts in transition causing a delay in getting the first payment out.  About a month after the contract was signed, the contractor was able to confirm receipt of payment and start scheduling their first set of tasks.

Plans and Permits

The first task by the installer as part of the contract engagement was to have electrical engineering plans developed to map the new electrical infrastructure.  This process had fits and starts while the engineers finally came to terms with the project objective.  The first set of plans were released and sent to the City of Chicago for permit approval.

The permit review sent it back asking for a revision.  Apparently, the first set of drawings submitted had all of the 92 chargers shown on the plans.  Since this is make-ready infrastructure only, the chargers should not have been represented.  This was part of the learning curve in knowing what the City would approve.  Our intent was to obtain one permit approval and then not have to permit new charger installations.  However, the City wants new permits for each new charger or batch of chargers installed after the make ready infrastructure is in place and active.

The drawings were revised and sent back to the City for permit approval.  Within about 2 weeks they were approved and we can start mobilizing the construction.

Service Agreements

While the plans and permits were in progress, I also facilitated the service agreements to get them settled with the condo’s attorney so they can be approved by the board and signed.  This process worked in parallel with the construction phase and was finally approved by the board 11 months after my initial request.  The service agreements included a revised EV Charging Rule to the by-laws that permits parking space owners to request an EV charger on the association’s charging infrastructure, and agreement with the EV charger equipment company and service provider, and an infrastructure maintenance agreement with the installer.  The board also reviewed agreements between the parking space owner and the installation service provider and an acknowledgement that the parking space owner read the EV charging infrastructure rules and will comply with what is requested in order to have an EV charger installed at their parking space.

Construction

The contractor held an initial site meeting with onsite building engineers to discuss access to the building and where materials can be stored.  Once that was all worked out, the electricians were onsite about a week later starting with the layout and mounting of the junction boxes within the parking areas.  Next the conduits were installed.  Within the first four weeks of the project, most of the conduit runs were in place and wiring of the primary 3 inch runs was installed. 

Figure 6. Example of an EV “zone” junction box.

We had 2 new breaker panels installed to distribute the circuits between the lower garage area and the upper deck parking area. 

Figure 7. New electric distribution panels for zones.

Each junction box was labeled with a “Zone” number that corresponds to a number in the breaker panel box.  The boxes were also labeled with which parking spaces the box was assigned to.  Typically 4 spaces are served by one junction box and one circuit breaker.  The parking spaces can only share a breaker with smart charger technology where the charger network itself manages the load to ensure there is no circuit overload.

Figure 8. InChargeE van on-site during installation.

Infrastructure Cutover

Now for the exciting part of making the infrastructure active.  It’s only exciting because it’s quite a coordination act since the cutover involves cutting power to part of the building.  In this case, the cutover ends up shutting down all of our elevators and common area lighting.  So, there were debates within the association board members of when this could be done.  We settled on performing the cutover during the day.  The condo board is also on edge about the elevators because they have aged and parts are difficult to get.  Shutting them off may risk not being able to get them back on.  To reduce that risk, the board required that the elevator service company be called out.  That then triggered a work order to be created and paid for upfront.  It took a few more weeks for payment to be received so that the shutdown could finally be scheduled.

Figure 9. New main breaker in main electric room.

Infrastructure Cutover Completion

The infrastructure shutdown and cutover were completed on January 28, 2026. Elevator service was offline for approximately three hours, from 11:00 AM to 2:00 PM. No operational issues were reported during or after the shutdown. Elevators were returned to service sequentially, and the EV charging infrastructure was successfully energized and connected to the building’s common electrical service.

EV Charging Information and One-Day Info Booth

Following activation of the infrastructure, the condominium board requested supporting materials for residents. These included an EV charging FAQ, an application form for charger installation requests, and guidance on account setup and system usage. These materials were prepared and published on the association’s website.

An on-site information booth was coordinated with the installation contractor and charging service provider to provide residents with direct access to technical and operational information. The booth was set up in the main floor elevator hallway using a table and chairs to create an accessible point of engagement for residents as they passed through the space. The booth was staffed on February 17, 2026, between 4:00 PM and 7:00 PM.

Approximately 15 residents stopped by the booth, with 5 to 6 demonstrating active interest and several arriving with specific questions. The informal, walk-up format allowed for practical, one-on-one discussions about installation logistics, pricing, and usage.

Key questions focused on post-promotional installation pricing and shared-use arrangements between adjacent parking space owners. It was clarified that shared usage is feasible under a single designated charger owner, with access granted to additional users at the owner’s discretion. All contractual, legal, and insurance responsibilities remain with the designated charger owner.

A follow-up communication was issued to residents confirming that the introductory installation price of $3,600, inclusive of charger equipment, installation, permitting, and commissioning, would expire on March 27, 2026. The standard installation price would increase to $4,250 thereafter, subject to future adjustments.

Initial adoption during the promotional period was limited. However, additional installation requests followed the first completed installation, reinforcing a common pattern observed in similar buildings where visible deployment reduces uncertainty and increases resident confidence.

Electrical Inspection and System Readiness

The completed make-ready infrastructure remained in place for approximately one month prior to final inspection scheduling. The City inspection was conducted on February 24, 2026, and the installation passed without issue. This milestone enabled scheduling of individual charger installations.

The total cost of the make-ready infrastructure was approximately $830 per parking space across 92 spaces. This cost efficiency was achieved primarily because the existing electrical service had sufficient capacity to support the system, avoiding the need for a utility service upgrade.

Zone Box Wire Pulling

As part of the infrastructure contract, all zone junction boxes were fully wired back to the distribution panels to eliminate the need for future wire pulling during individual charger installations. This work was completed between March 2 and March 4, 2026.

Penetrations through fire-rated assemblies were sealed and restored as part of this phase to maintain code compliance.

Figure 10. Wire being pulled to junction boxes.

EV Charging Service Communication Routers

Final system commissioning required installation and activation of communication hardware for the EV charging network. Three communication routers were installed within the garage, along with one internal communication module integrated into the first charger installation.

While the hardware was physically installed during earlier phases, network activation required energizing the associated circuits.    Initial observations indicated that the communication network was not fully powered until final commissioning steps were completed.

Figure 11. EverCharge communication routers.

EV Charger Installation

With the infrastructure approved for use, I proceeded to request installation of my own EverCharge EV02 charger. The request was submitted through the condominium’s online work order system and coordinated directly with the installation contractor, InChargeE. Following receipt of the installation estimate, a 50 percent deposit invoice was issued and paid immediately.

Installation scheduling was delayed due to outstanding final payments from the association to InChargeE for the completed infrastructure work. As a result, my installation request was deferred until those payments were resolved, extending the timeline by approximately one month.

By March 25, 2026, infrastructure payments had been received, and InChargeE was able to place the order for the charger. Delivery occurred shortly thereafter, and on April 6, confirmation was received that the charger had arrived at the contractor’s facility. Installation was scheduled for April 13.

On the day of installation, a single technician was assigned to complete the work. The installation began with a site review involving the building engineer to confirm access and working conditions. The parking space was cleared to provide sufficient workspace.

Due to the angled configuration of the parking space, additional coordination was required to determine optimal placement of the electrical components. The objective was to achieve a clean and functional installation, with conduit routed in a straight vertical alignment to a disconnect box, and the charger mounted directly adjacent to it. This approach balanced accessibility, code compliance, and visual consistency within the garage environment.

The installation required nearly a full day to complete. Upon completion, all equipment was installed, connected, and energized. However, the charger required network registration with the EverCharge system before it could authorize charging sessions. The unit displayed an orange LED indicator, which signified that network communication had not yet been established. The installer indicated that initial network synchronization can take up to 24 hours under normal conditions.

Figure 12. Orange indicator light post-installation.

Commissioning and Troubleshooting

On April 14, the installer returned with a second technician to address the lack of network connectivity, as the charger remained inactive. Troubleshooting identified that the electrical circuit supplying power to the communication network routers had not been energized during the infrastructure installation phase.

The building engineer provided access to the distribution panels, allowing the installer to activate the circuit. Once energized, the primary communication router displayed active status indicators, confirming network power.

Further investigation revealed that two additional routers were connected via CAT6 cabling, likely operating with power over ethernet (PoE). These units did not display illuminated status indicators, which initially suggested a fault condition. After coordination between the installer and the network provider, it was confirmed that these secondary devices do not display visible indicators despite operating normally within the network.

Figure 13. EverCharge member card from the mail.

Final commissioning required coordination with the charging network provider to authorize the user account associated with the charger. Once the member credential was activated, the system was tested in real time. The vehicle successfully connected to the charger, and the charging session initiated as expected, confirming full system functionality.

Figure 14. Active charger with green indicator light.

Charging Service Structure

The association implemented a usage-based billing structure through the charging network provider. Under this model, a service fee of $0.09 per kWh is applied for network operations. The association established an additional $0.14 per kWh to reimburse electricity consumption drawn from the building’s common meter.

The resulting total rate charged to EV charging members is $0.23 per kWh. The association does not generate profit from EV charging activity. All collected funds are structured to offset actual electricity usage costs associated with the system.

Final Inspection and Closeout

Following completion of the installation, the remaining balance for the charger installation was paid to InChargeE, satisfying all financial obligations for the work.

The contractor subsequently initiated scheduling of the final municipal inspection for the individual charger installation. This inspection is scheduled for May 6, 2026, and is expected to be a routine verification of code compliance. Upon completion of this inspection, the installation will be formally closed out.

Operational Confirmation

One week after installation, the charger remained fully operational with stable network connectivity and consistent charging performance. To document system functionality under normal use conditions, I prepared a video demonstration showing charger activation, network authorization, and an active charging session. The recording confirms that the installation is functioning as intended and that the system is stable in ongoing operation.

Figure 15. Active charging session recorded.

Conclusion

This project illustrates that implementing EV charging in an existing condominium is a coordinated process across engineering, governance, legal, and operational domains. The project’s complexity lies in coordinating the sequence of decisions, documentation, and approvals necessary to deliver a system that is both technically sound and administratively durable.

The resulting make-ready infrastructure provides access to EV charging for all parking space owners through a standardized and repeatable process. By leveraging available electrical capacity, the association avoided a utility service upgrade and delivered the system at an approximate cost of $830 per parking space. The structure of the installation and governance framework reduces future installation time, limits incremental cost, and minimizes disruption for subsequent charger requests.

This case also demonstrates a typical adoption pattern in multi-family environments, where initial uptake is gradual and increases once residents observe a successful installation in operation. The infrastructure positions the property to accommodate this growth without requiring additional foundational investment.

The experience gained through this process led directly to the formation of Ready EV Now, with the objective of applying a structured, strategy-first approach to help other condominium associations implement EV charging infrastructure more efficiently and with fewer unknowns.

Next
Next

From Request to Reality: 18 Months to EV Charging in a Chicago Condo Garage